間取り・注文住宅プラン集
【間取り・注文住宅プラン】コンパクトな敷地に建つ3LDKの間取り

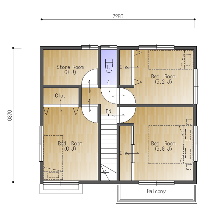
南玄関、東西の間口4.0間(7280㎜)、南北の奥行が3.5間(6370㎜)の参考プランです。
こちらもコンパクトな敷地に建つ3LDKの間取りです。
先ほどのプランと同じ建物のサイズですが、さらに二階のホール面積をコンパクトにした間取りですので二階に無駄なスペースがありません。
玄関ホールから二階に上がるようになっていますが、リビングのテレビ位置をかえて階段をリビング側から上がるように向きを変えることもできます。LDKは16帖あるので十分な広さがとれています。
二階は三部屋、ホールは一帖程度にまとめて効率のよい間取りになりました。各部屋は視覚的に広く見えるよう全て角部屋にしています。子供部屋にはそれぞれ一間の収納があるほか、3帖の納戸あります。収納しきれない季節ものをいれるスペースになるほか、リモートコーナーにも転用できますね。
これをベースにお好きな間取りに描き変えてください!(S044)

