間取り・注文住宅プラン集
【間取り・注文住宅プラン】コンパクトな敷地にそれぞれ大きな部屋を配した2LDKの間取り

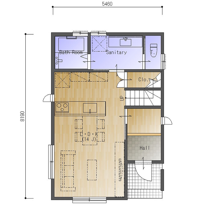
南玄関、東西の間口3.0間(5460㎜)、南北の奥行が4.5間(8190㎜)の参考プランです。
コンパクトな敷地にそれぞれ大きな部屋を配した2LDKの間取りですね。
L・D・Kは14帖。一回り小さなダイニングセット・リビングセットの配置でしっかり見栄えする空間になります。
洗面は少し広めにとってその奥にトイレを配置。少人数の家族であればこのような動線もアリですね。もしトイレの位置を変えるなら階段とホールをいじれば階段下にトイレを置くこともできます。
二階はゆとりのある二部屋。それぞれに一坪のクロゼットを設け、南側の主寝室には屋根のついたバルコニーがついています。プライバシーの高いバルコニーですので洗濯物を干すにも、くつろぐこともできるようにもなっていますね。
これをベースにお好きな間取りに描き変えてください!(S011)

