間取り・注文住宅プラン集
【間取り・注文住宅プラン】コンパクトな2LDKの間取り

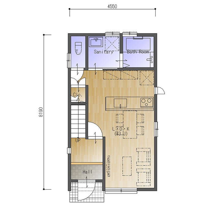
南玄関、東西の間口2.5間(4550㎜)、南北の奥行が4.5間(8190㎜)の参考プラン、
コンパクトな2LDKの間取りになります。
コンパクトなサイズなので廊下やホールを極力小さくするよう工夫されています。
それでも一階は標準的な2550㎜サイズの対面キッチンが入るレイアウトとし、ダイニングテーブルをおいてもコンパクトなリビングソファが入るようなリビングダイニングの設計になっています。
水回りはキッチンの背面に集中配置をし、生活動線としても動きやすい形に。トイレは人目につきにくいところに配置する工夫をし、階段下に収納をおいてスペースを極力有効活用しています。
二階は大きく二部屋にする間取りにしています。北側には一間の収納が付いた和室(もちろん洋室でもいいですね)、南側には7.5帖の主寝室。3帖のウォークインクロゼットもついているので収納もバッチリ、トイレも二階にありますので就寝中も階下に降りなくていいので便利です。
これをベースにお好きな間取りに描き変えてください!(S002)
間取り図ダウンロード
イメージパース



