MEGASOFT

間取り・注文住宅プラン集

全間取り図無料ダウンロード

【間取り・注文住宅プラン】カーポートのある独立性の高いリビングを持った4LDKの間取り

【間取り・注文住宅プラン】リビングと一体感のある和室を持った4LDKの間取り

【間取り・注文住宅プラン】カーポートと吹き抜けのある5LDKの間取り

【間取り・注文住宅プラン】独立和室のある5LDKの大きな住まいの間取り

【間取り・注文住宅プラン】広いリビングと一体で使える和室のある、広い4LDKの間取り

【間取り・注文住宅プラン】南玄関の回遊動線のある間取り

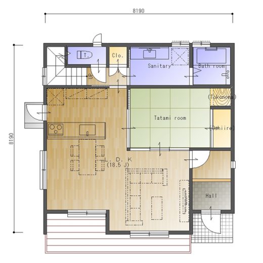
【間取り・注文住宅プラン】リビングと繋がった和室のある使いやすい4LDKの間取り

【間取り・注文住宅プラン】カーポートのある広いリビングの3LDKの間取り

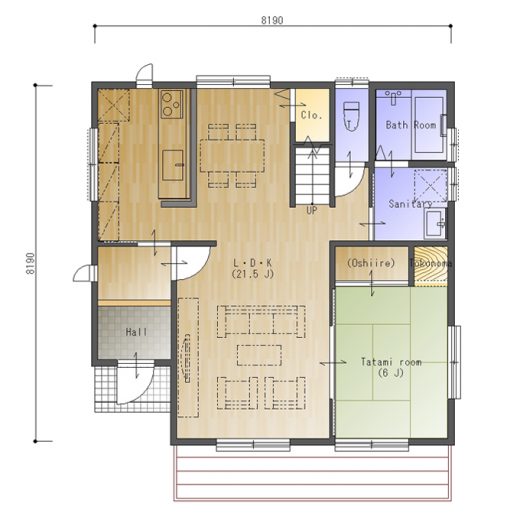
【間取り・注文住宅プラン】リビングと繋がった使いやすい和室のある4LDKの間取り

40 / 60« First«...102030...36373839404142434445...60...»Last »
  • 3Dマイホームデザイナーで家を建てたら10,000円お祝い金プレゼント 2026年3月31日(火)まで
  • 3Dアーキデザイナー
特集の間取りを見る

■間取り図の利用方法について
■m3dデータについて

間取り・プランの検索

部屋数
階数
玄関向き
延べ床面積

その他のキーワード

2階トイレ 2階リビング 2階水回り m3d アイランドキッチン アウトドアリビング ウォークインクロゼット ウッドデッキ カーポート コートクローク シューズクローク セカンドリビング バスコート パントリー ミセスコーナー ライトコート リビング階段 リモートコーナー リモートワーク ロフト ワークスペース 二世帯住宅 北側斜線 北側水回り 吹き抜け 和室 回遊動線 土間 対面キッチン 斜線制限 書斎 玄関収納 玄関土間 納戸 階段下収納
MEGASOFT

間取り・注文住宅プラン集

©1995-2023 MEGASOFT Inc.