間取り・注文住宅プラン集
【間取り・注文住宅プラン】玄関を共有するタイプの2世帯住宅の間取り

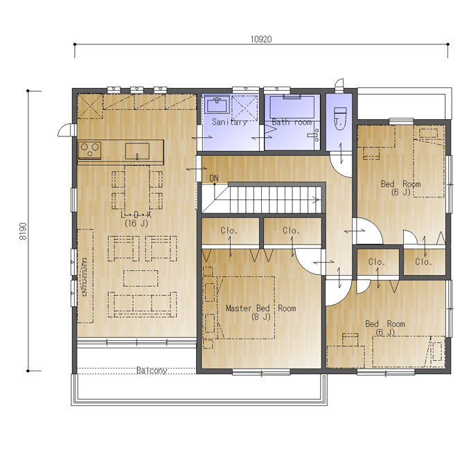
東西の間口6.0間(10920㎜)、南北の奥行が4.5間(8190㎜)の北玄関の参考プランです。
玄関を共有するタイプの2世帯住宅の間取りです。
1階は親世帯で、和室が2部屋あります。LDKは16帖で、リビングの南側には和室前までつながる大きなデッキが広がっています。リビングから続く和室2室は、床の間のあるオーソドックスなタイプなので、お花や掛け軸などを飾って和の趣を楽しめます。リビング側の和室は、来客の際の応接間として使われてもいいですね。
子世帯は2階で、寝室が3部屋あります。LDKは16帖で、キッチンからはダイニングとリビングを一目で見渡せる間取りなので、料理中も家族との会話がはずみそうです。お子さんの遊びやリビング学習の見守りもでき、安心の間取りです。南側には広々としたバルコニーがあり、室内を明るく照らしてくれます。主寝室は8帖、2間分の収納がついています。子供部屋は2部屋とも角部屋になっており、採光性・通気性に優れています。
これをベースにお好きな間取りに描き変えてください!(N162)

