間取り・注文住宅プラン集
【間取り・注文住宅プラン】大きなデッキとLDKの中心にキッチンがある、楽しい3LDKの間取り

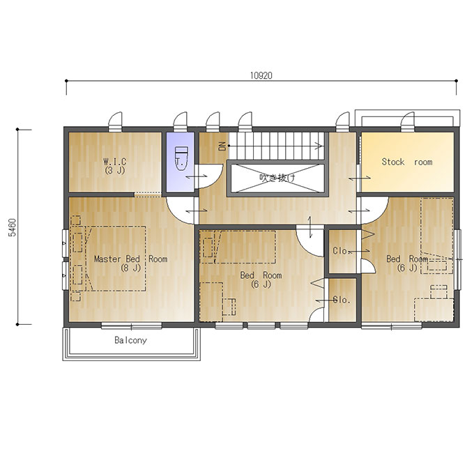
東西の間口6.0間(10920㎜)、南北の奥行が3.0間(5460㎜)の北玄関の参考プランです。
大きなデッキとLDKの中心にキッチンがある、楽しい3LDKの間取りです。
1階は階段脇が吹き抜けになっており、開放感があります。LDKは23.5帖と広々とした間取りです。LDKの中心に配置したキッチンは動線が止まることが無いので家族みんなで集まって調理ができます。キッチンにはカウンターもついており、忙しい朝の食事に最適です。LDKの南側には広々としたデッキがあり、ペットや小さなお子さんの遊び場にもぴったりです。
2階の主寝室は8帖あり、南側にバルコニー、西側にも窓があるので、採光性と通気性に優れています。また主寝室の奥には3帖のウォークインクロゼットがついています。2つある6帖の子ども部屋は互い違いに組み合わさった収納を挟んでいるため、プライベートを損なわないように配慮がされています。さらに、2階には3帖ほどのストックルームがあるので、家族の荷物をしっかり収納できます。
これをベースにお好きな間取りに描き変えてください!(N157)

