間取り・注文住宅プラン集
【間取り・注文住宅プラン】和室につながったリビングのある充実の5LDKの間取り

東西の間口5.5間(10010㎜)、南北の奥行が5.0間(9100㎜)の北玄関の参考プランです。
和室につながったリビングのある充実の5LDKの間取りです。
北側の玄関前には駐車スペースを設けました。玄関にはシューズクロークもあり、ゴルフバッグやベビーカーなど、外回りの品物を収納するのにも便利です。
LDKは23.2帖もあり、ダイニングテーブルやリビングソファを置きやすいレイアウトになっています。和室につながる引き戸を開ければさらに広々とした空間に。キッチンと横並びにダイニングテーブルを配しており、調理後すぐテーブルにつけるレイアウトになっているので、忙しい朝などは何かと役立ちそうですね。
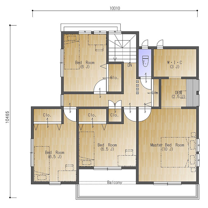
2階の主寝室は広々とした10帖。その奥には2.5帖のワークスペースと3帖のウォークインクロゼットがあります。3つある子供部屋はそれぞれ6帖以上あり、各室とも収納スペースが充実しています。
これをベースにお好きな間取りに描き変えてください!(N151)

