間取り・注文住宅プラン集
【間取り・注文住宅プラン】2階に水回りとリビングをもってくることで広いLDKを実現した3LDKの間取り

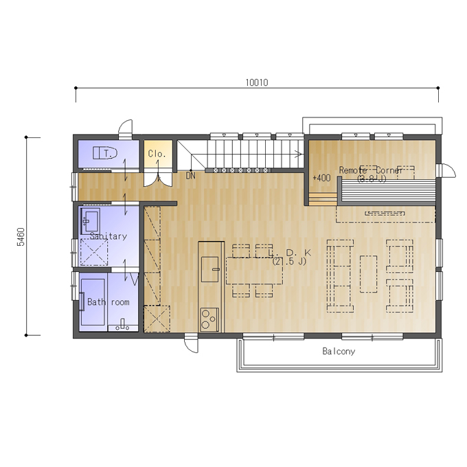
東西の間口が5.5間(10010㎜)、南北の奥行が3.0間(5460㎜)の北玄関の参考プランです。
2階に水回りとリビングをもってくることで広いLDKを実現した3LDKの間取りです。
1階は主寝室と子供部屋が2部屋。主寝室には3帖のウォークインクロゼットを用意しました。
2階にあがると21.5帖の広々としたLDKが。リビングのわきにはリモートコーナーも設けました。程よくスペースが分かれており、集中できる空間です。親の仕事コーナーだけでなくお子様の勉強スペースにしても良いですね。家族みんなで共有できる楽しいスペースになりそうです。
キッチンは対面型で家族とコミュニケーションを取りながら家事ができるのも嬉しいポイント。
広いLDKですがキッチンからリビング全体を見渡せます。
2階リビングは採光・通風の優れた間取りです。また、リビングからの眺望も楽しめ、プライバシーを守りながら開放的でリラックスした空間となっています。
これをベースにお好きな間取りに描き変えてください!(N135)

