間取り・注文住宅プラン集
【間取り・注文住宅プラン】リビングが和室と繋がった、5LDKの間取り

東西の間口5.0間(9100㎜)、南北の奥行が4.5間(8190㎜)の北玄関の参考プランです。
リビングが和室と繋がった、5LDKの間取りです。
玄関を入ってすぐに洗面があるため、帰ってすぐに手を洗うことができます。
お子様に手洗いの習慣をつけるためにも良いレイアウトです。
リビングは19帖。リビングダイニングセットを置いても余裕のある広さです。
対面キッチンでリビング全体を見渡しながら家事ができるのも嬉しいポイント。
家族の顔を見ながら家事ができ、会話も弾みそうです。
また、6畳の和室をリビング続きに配置しているので、休憩スペースや子供の遊び場、来客時の寝室などさまざまな使い方ができます。
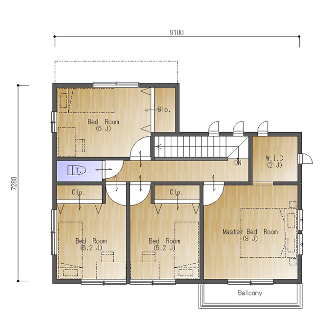
二階は四部屋。8畳の主寝室には2畳のウォークインクローゼットがあり収納も十分。廊下を最小限にすることで、二階にもトイレを配置できます。各部屋に1畳のクローゼットがあり収納のある子供部屋として使い勝手の良い間取りとなっています。
これをベースにお好きな間取りに描き変えてください!(N121)

