間取り・注文住宅プラン集
【間取り・注文住宅プラン】リビングとつながった和室のある、使いやすい4LDKの間取り

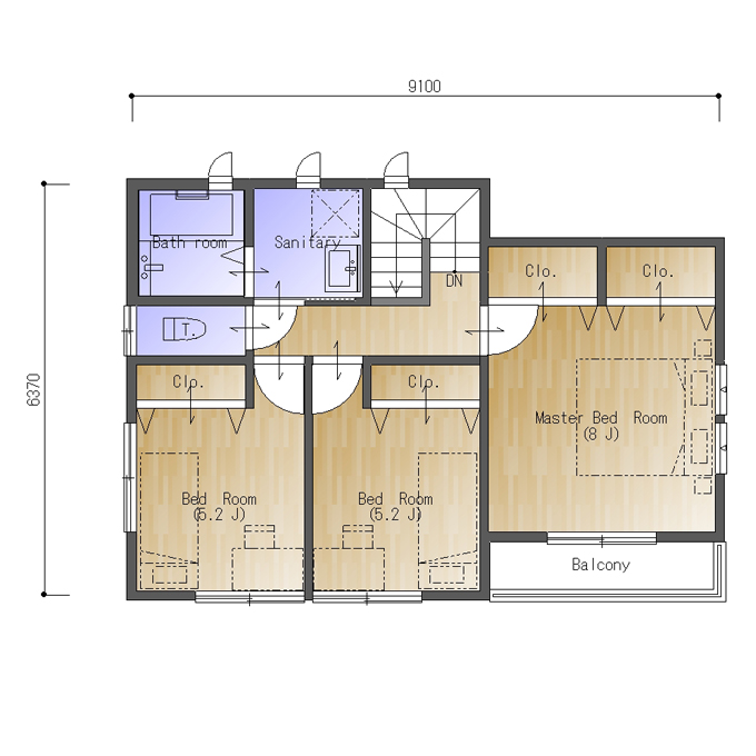
北玄関、東西の間口5.0間(9100㎜)、南北の奥行が3.5間(6370㎜)の参考プランです。
リビングとつながった和室のある、使いやすい4LDKの間取りです。
玄関の左手にはシューズクローク。ベビーカーやゴルフバッグなどを収納するのに便利です。一部をコートクロークにすれば、花粉の時期など屋内にコートを持ち込まないようにしたり、お客様の衣類をお預かりしたりすることもできます。
家族のコミュニケーションがとりやすいリビング階段にしました。
18.2帖のLDKは、家族の顔を見ながら料理ができるのがポイント。リビングにいる家族とも会話がはずみそうです。隣り合う和室のフスマを開放すれば、さらに開放的な空間になります。和室はリビングを通らなくても、直接玄関ホールから入れる仕様になっています。自宅で習い事を教えたりするのも良いですね。
二階の主寝室は、8帖とキングサイズのベッドを置いても十分な広さ。主寝室のクロゼットは二つあるため、夫婦で使い分けるのも便利です。
二つある子供部屋は、均等にする工夫をしています。それぞれクロゼットがあるので、収納量もバッチリです。
これをベースにお好きな間取りに描き変えてください!(N110)

