間取り・注文住宅プラン集
【間取り・注文住宅プラン】玄関ポーチをゆったりとった、カーポート付きの4LDKの間取り

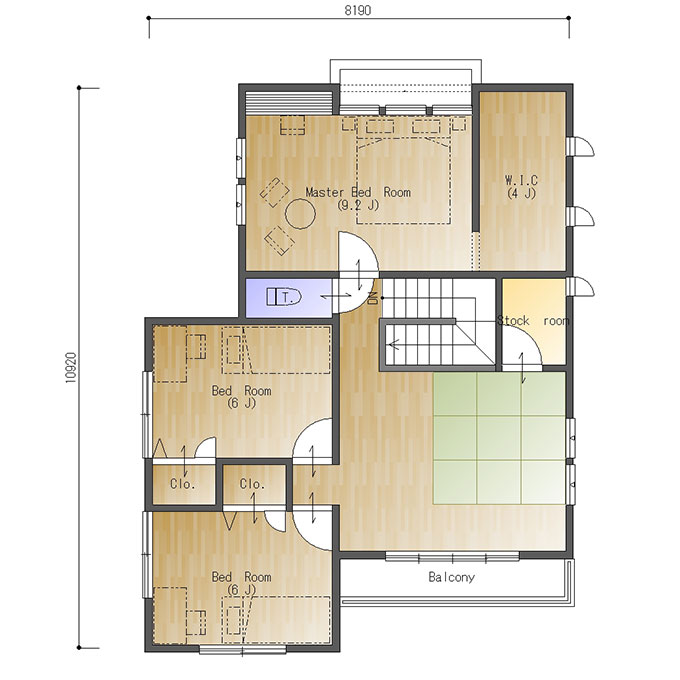
北玄関、間口4.5間(8190㎜)、奥行6.0間(10920㎜)の参考プランです。
玄関ポーチをゆったりとった、カーポート付きの4LDKの間取り。
玄関ホールにはベビーカーやアウトドア用品の収納に便利なシューズクロークが設けられています。
一階には対面式のキッチンを含む18.5帖のLDKと4.5帖の和室がデッキを囲むように配置され、緩やかに外へと繋がります。キッチンから洗濯室を兼ねたユーティリティーコーナーを経て洗面所・浴室へと繋がる動線が確保された、機能的なレイアウトです。
二階には4帖のウォークインクロゼットを備えた9.2帖の主寝室と6帖の洋室二部屋に加え、タタミコーナーのあるホールが設けられています。南向きのバルコニーに面した広いホールは、お子様の遊び場やセカンドリビングにも最適。多目的に利用できるゆとりの空間です。
各居室のクロゼットに加え、一階には玄関ホールのクロゼットと一間半の押し入れ、二階ホールに納戸があり、収納スペースも充実しています。
これをベースにお好きな間取りに描き変えてください!(N098)

