間取り・注文住宅プラン集

【間取り・注文住宅プラン】吹き抜けのある明るい4LDKの間取り

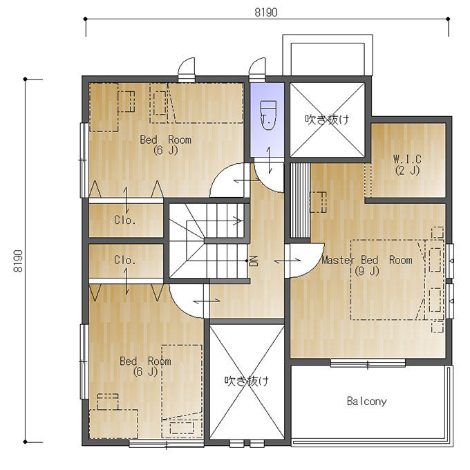
北玄関、東西の間口4.5間(8190㎜)、南北の奥行が4.5間(8190㎜)の参考プランです。

吹き抜けのある明るい4LDKの間取りとなっています。

玄関は吹き抜けから入る日差しが明るく、気持ちの良い空間です。
一階LDKは18帖。ダイニングの天井にも吹き抜けがあり、開放感はバツグン。
隣あった6帖の和室のフスマを開くと一体感があり、全部で24帖のゆったりとした空間に。和室はお客様を迎えたり親戚に泊まってもらったりするのにもちょうど良い広さですね。押し入れもあるのでお布団収納にも困りません。

人気の対面キッチンは家族の様子がうかがえ、自然と会話も増えそうですね。
キッチンから洗面所まで一直線のレイアウトは、移動距離が少なく家事がラクにできるのもポイントです。

二階は6帖の寝室が二部屋と9帖の主寝室。
主寝室はキングサイズのベッドを置いても十分な広さ。さらにカウンタースペースと2帖のウォークインクロゼットも配されているので、仕事や趣味の場にもなりそうです。
奥行の深いバルコニーはアウトドアリビングにもなりますね。休日は眺めの良いバルコニーでくつろぐのもいいでしょう。

これをベースにお好きな間取りに描き変えてください!(N090)