間取り・注文住宅プラン集
【間取り・注文住宅プラン】充実した収納が魅力な4LDKの間取り

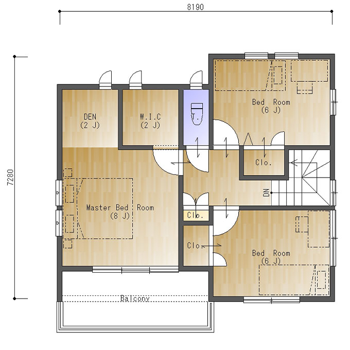
北玄関、東西の間口4.5間(8190㎜)、南北の奥行が4.0間(7280㎜)の参考プランです。
充実した収納が魅力な4LDKの間取りとなっています。
一階のリビングダイニングは12帖。4.5帖のキッチンは奥に配置して来客時に舞台裏を見せないような工夫をしています。
隣り合う4.5畳和室のフスマを開放すれば、全部で約16.5帖の空間に。和室は客間にも使えますし、アイロンなどの家事にも使えます。お客様を迎えたり親戚に泊まってもらったりするときにも役立ちます。押入れもついているのでお布団収納にも困りません。
二階はホールをコンパクトにまとめて居室を大きくとる間取り。階段を挟んだ二つの子供部屋はいずれも角部屋なので通風・採光に優れています。
主寝室は8帖、キングサイズのベッドを置いても十分な広さ。主寝室はウォークインクロゼットのほかに書斎コーナーもあります。採光の良い明るいお部屋でリモートワークにも使えそうです。
これをベースにお好きな間取りに描き変えてください!(N083)

