間取り・注文住宅プラン集
【間取り・注文住宅プラン】コンパクトな敷地に立つ3LDKの間取り

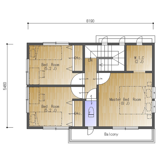
北玄関、東西の間口4.5間(8190㎜)、南北の奥行が3.0間(5460㎜)の参考プランです。
コンパクトな敷地に立つ3LDKの間取りです。
一階のLDKは16.5帖、リビングスペースをゆったり取った間取りです。対面キッチンなので家族の顔を見ながら家事や料理ができるのがポイント。リビングには大きなテレビやソファを置けるスペースがあります。帰宅した家族が必ず通るリビング階段を備えているので、家族がリビングに自然と集まり会話もはずみますね。
トイレや洗面所、お風呂場は人目につきにくいところに配置し、お客様に生活感を見せない間取りです。
二階には、子供部屋が二つと主寝室。子供部屋はどちらも5.2帖の角部屋、通風・採光に優れています。8帖の主寝室には、2帖のウォークインクロゼットが設けてあります。広いバルコニーがありますので、開放的な空間です。子供部屋との間に廊下を挟み、互いのプライベートを損なわない配慮の間取りです。
これをベースにお好きな間取りに描き変えてください!(N068)

