間取り・注文住宅プラン集
【間取り・注文住宅プラン】開放感ある吹き抜けがあり、大きなLDKがある4LDKの間取り

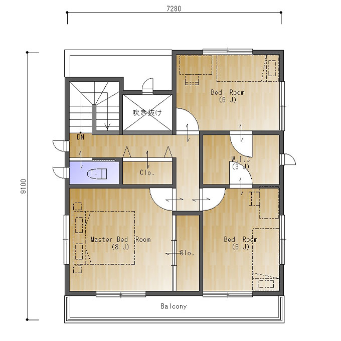
北玄関、東西の間口4.0間(7280㎜)、南北の奥行が5.0間(9100㎜)の参考プランです。
開放感ある吹き抜けがあり、大きなLDKがある4LDKの間取りです。
LDKは16帖、つながった和室を開放すると22帖の大きさを確保できます。来客と談笑したりコタツに横になったり。日本人にはやはりタタミのある空間は嬉しいものです。キッチンは、対面タイプなので、家族の顔を見ながら家事や料理ができます。リビングにいる家族との会話もはずみますね。家族の団欒に最適のスペースです。
玄関は吹き抜けとなっているため、開放感に満ちた広さが感じられます。
二階には8帖の主寝室と6帖の子供部屋が二部屋あります。子供部屋は、二面の窓を設置した角部屋ですので狭さを感じません。また双方から出入りできる3帖の共用のウォークインクロゼットを子供部屋の間に設置。学校で使用する道具なども収納できる広さなので、それぞれの子供部屋を有意義に使えます。
これをベースにお好きな間取りに描き変えてください!(N057)

