間取り・注文住宅プラン集
【間取り・注文住宅プラン】吹き抜けのある4LDKの間取り

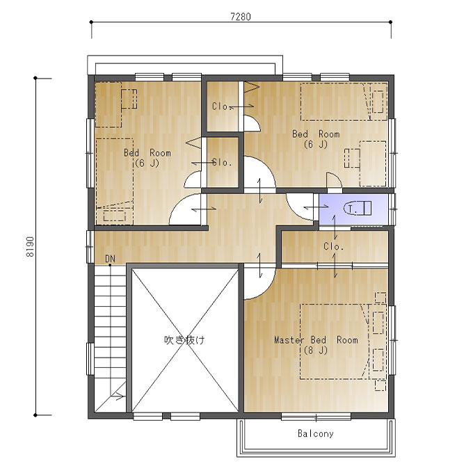
北玄関、東西の間口4.0間(7280㎜)、南北の奥行が4.5間(8190㎜)の参考プランです。
吹き抜けのある4LDKの間取りです。
1階にあるLDKは18帖、南面に設けています。対面キッチンなので家族の顔やテレビを見ながら家事ができるのがポイントです。大きなテレビ、ソファーを置ける十分なスペースがあるので、自然と家族が集まり会話がはずみます。リビングの一部が吹き抜けになっているので、とても開放感があります。
また、リビングに接した畳の部屋があります。お客さまが泊まるゲストルームとして、お年を召した親御さんのためとしても利用できる使い勝手のよい和室です。
二階は6帖の子供部屋が二つに主寝室。全ての部屋を角部屋に配置し、風通し・彩光に配慮しています。どの部屋にも備え付けのクロゼットを設置し、収納場所を確保しています。主寝室は8帖。南向きのバルコニーに面しているので、開放感に溢れた広さが感じられます。
これをベースにお好きな間取りに描きかえてください!
(N054)

