間取り・注文住宅プラン集
【間取り・注文住宅プラン】コンパクトな敷地を目いっぱい使った3LDKの間取り

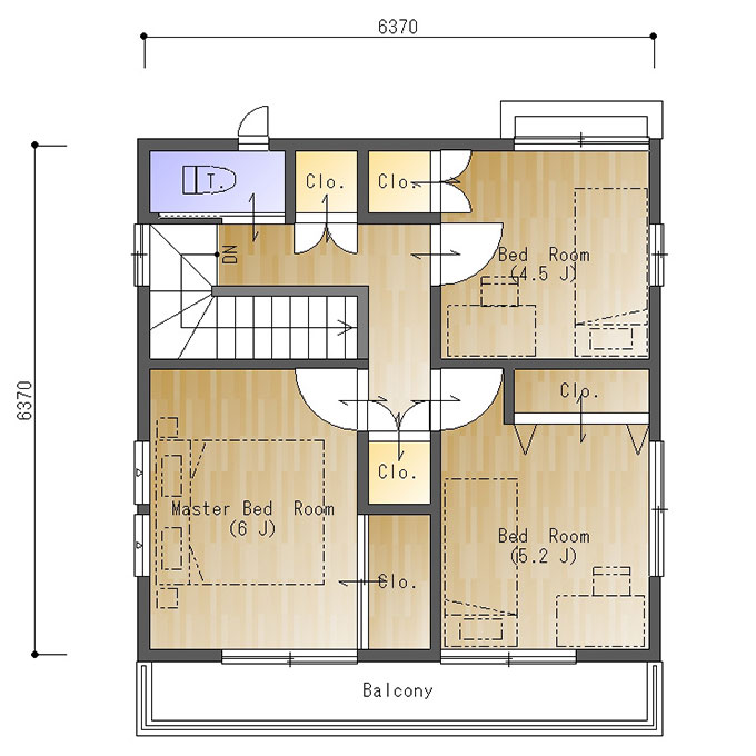
北玄関、東西の間口3.5間(6370㎜)、南北の奥行が3.5間(6370㎜)の参考プランです。
コンパクトな敷地を目いっぱい使った3LDKの間取り。
一階は対面キッチンで14.5帖のLDK。コンパクトながらもダイニング家具やソファも置けるよう設計しています。
二階は部屋をなるべく広くとれるように、工夫して部屋を配置しました。だからこの大きさの建物でも快適なお部屋が三つとれています。廊下には使い勝手のよい収納が二か所ついているので、家事もはかどります。
6帖の主寝室は、間口いっぱいにとったバルコニーへとつながり、視覚的に解放感があります。カーテンを開けて朝日を浴びれば、気持ちのよい朝を迎えられそうですね。
北の子供部屋は4.5帖だけど角部屋になっていて二面採光、通風もよく狭さを感じさせない作りになっています。また、5.2帖の部屋と収納を挟んでつながっているので、将来間仕切りを外せば大きな一部屋に。お子さまが小さいうちは、しばらく一部屋で使ってもよいですね。
これをベースにお好きな間取りに描き変えてください!(N024)

