間取り・注文住宅プラン集
【間取り・注文住宅プラン】一階にリモートコーナーを配置したリビング階段の3LDKの間取り

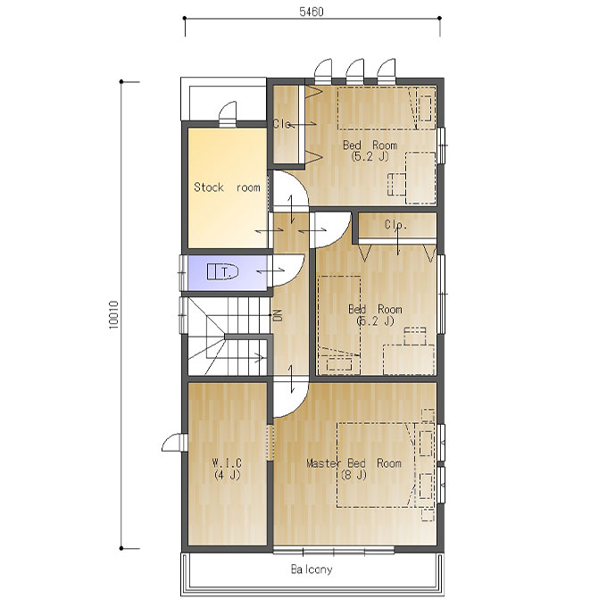
北玄関、東西の間口3.0間(5460㎜)、南北の奥行が5.5間(10010㎜)の参考プラン。
一階にリモートコーナーを配置したリビング階段の3LDKの間取りです。
間口が3.0間(5460㎜)とれる敷地に建てられる標準的な間取りになります。
これだけの間口だとリビングの脇にリモートコーナーを配置することができます。
最近は自宅内でのワークスペースの需要が高いため、独立した空間で仕事に集中できるスペースとなっています。
また、この部屋をタタミにして、つかれたらちょっと横になったり、お子さんが小さいときは寝かしつけのスペースにしたりすることも可能です。
二階は縦に並んだ三部屋。
建物の奥行がとれているので子供部屋は5.2帖の大きさとは別に一間の収納が付いています。廊下には納戸的な物入も。
主寝室は8帖の角部屋。
4帖のウォークインクロゼット付き。日当たりが良いのでお休みの日は部屋から出てこられなくなりそうですね。もちろんバルコニーもつけられます。
これをベースにお好きな間取りに描きかえてください!
(N020)

