間取り・注文住宅プラン集
【間取り・注文住宅プラン】吹き抜けを中心とした二階回遊動線のある4LDKの間取り

東(西)玄関で東西の間口5.5間(10100㎜)、南北の奥行が4.5間(8190㎜)の参考プランです。
吹き抜けを中心とした二階回遊動線のある4LDKの間取りです。
一階は階段を中心にバランスの取れた間取りになっています。玄関を入ってまっすぐはいるとキッチンと広々としたダイニング、6人掛けの大きなテーブルも入るサイズです。ダイニング前のポーチは大きくはりだしたバルコニーが庇になってくれて、夏の強い日差しも遮ってくれる快適な空間になっています。
そして6帖大の吹き抜け。リビングから見上げると二階ホールがよく見えます。
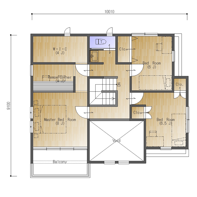
二階主寝室は8帖、4帖のウォークインクロゼットと4帖のリモートコーナーが付いています。リモートコーナーは明るいバルコニー側を向いているので気持ちよく仕事ができます。ウォークインクロゼットも4帖あるので収納量も十分ですね。
これをベースにお好きな間取りに描き変えてください!(E147)

