間取り・注文住宅プラン集
【間取り・注文住宅プラン】二階リビングの4LDKの間取り

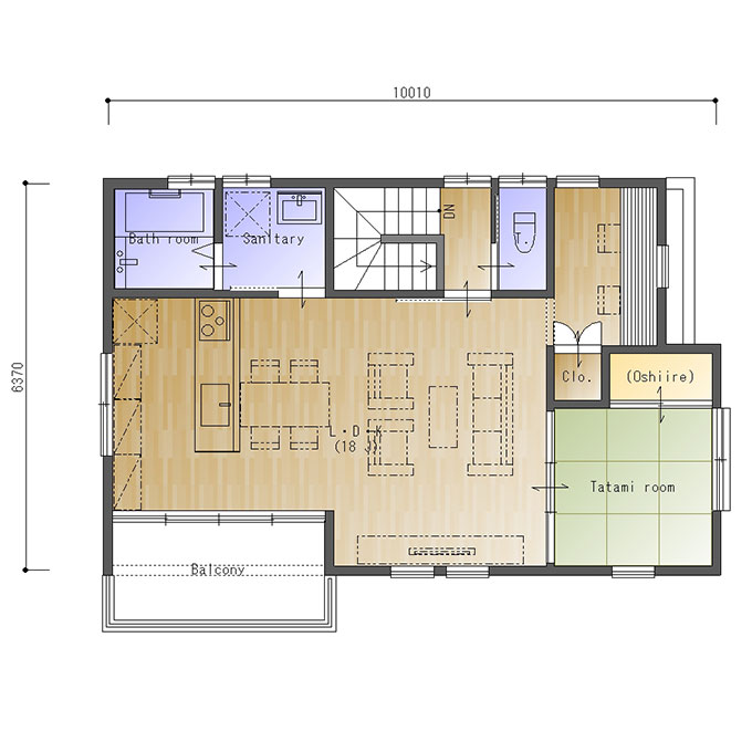
東(西)玄関で東西の間口5.5間(10100㎜)、南北の奥行が3.5間(6370㎜)の参考プランです。
二階リビングの4LDKの間取りです。
土間収納やコートクロークのある玄関を通って二階にいくとホールを通じて16帖のLDKが。4畳半の和室も別にありますので全部で20帖以上のスペースになります。また玄関ホール上の空間にリモートコーナーを設けました。2600㎜程度の間口の広いスペースですので隣り合って机に向かうことができます。兄妹で勉強を教えあうなんてことになったらいいコミュニケーションが生まれそうですね。
キッチン脇の大きな開口の先には庇のあるインナーバルコニーを設けました。洗濯物をほすにもちょっとしたテーブルを出してアウトドアダイニングにもなります。
その下の主寝室前もバルコニーを庇にして奥深いポーチがあります。ここでも休日はチェアを出してくつろげますね。雨の日でも大丈夫です!
これをベースにお好きな間取りに描き変えてください!(E138)

