間取り・注文住宅プラン集
【間取り・注文住宅プラン】東西に細長いコンパクトな敷地に建つ、3LDKの間取り

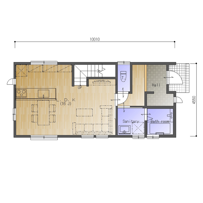
東(西)玄関で東西の間口5.5間(10100㎜)、南北の奥行が2.5間(4550㎜)の参考プランです。
こちらも東西に細長いコンパクトな敷地に建つ、3LDKの間取りです。
こちらは玄関側に水回りを持ってきています。空間をうまく使ってこちらのプランでは玄関にシューズクロークを設けています。玄関にお手洗いがありますが、玄関扉を開けるても正面は壁になっているので来訪者はそこがお手洗いという事がわからない視線になります。このほうがエントランスとしてはいいですよね。
LDKは16帖。家族のコミュニケーションが弾むリビング階段にして、そこにテレビ台を置くようにするのはどうでしょう?キッチンも対面キッチンになっています。
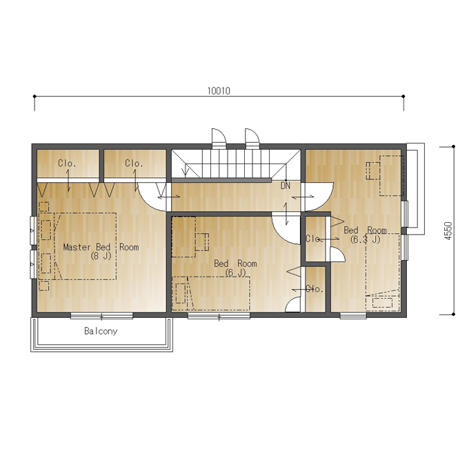
二階は三部屋、子供部屋を互い違いの収納で仕切る作りにしてあります。作り付けでなく、据え付けるタイプの可動式収納で間仕切るのもいいですよね。将来的に一部屋にリフォームしやすくなります。バルコニーは主寝室のみにつけていますがもちろん子供部屋まで伸ばすこともできます。
これをベースにお好きな間取りに描き変えてください!(E131)

