間取り・注文住宅プラン集
【間取り・注文住宅プラン】和室のある4LDKの間取り

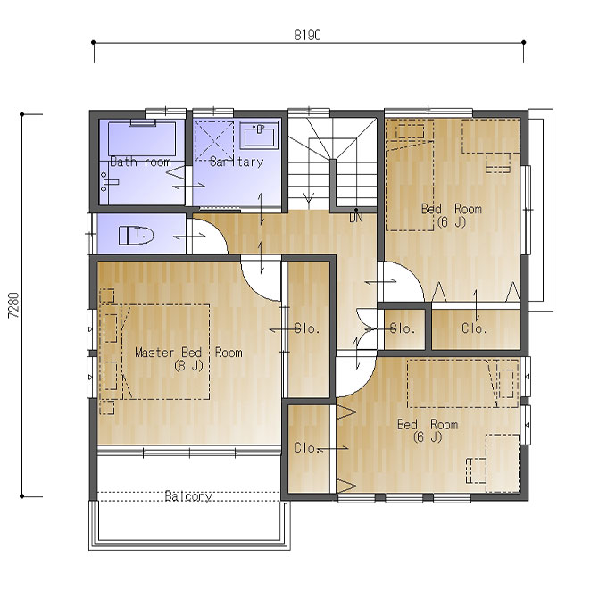
東玄関、東西の間口4.5間(8190㎜)、南北の奥行が4.0間(7280㎜)の参考プランです。
一階のLDKを広くとり、二階に水回りを設けました。和室のある4LDKの間取りです。
玄関を入ると廊下の先に4.5帖の和室があります。廊下側とリビング側の二方向からの出入りが可能。アイロンがけなどの家事や、お子様の寝かし付けにも便利なスペースです。
一階のLDKは20.5帖。隣り合う和室のふすまを開けると25帖ほどの空間になります。二階のバルコニーを庇にしたデッキがあるので、夏の日差しを直接受けないリビングです。定番の対面キッチンで家族の様子を見ながら家事がこなせます。
二階は子供部屋二つと主寝室の三部屋があります。すべて角部屋なので通風・採光に優れています。子供部屋はいずれも6帖のクロゼット付きです。
主寝室は、クロゼット付きで8帖あります。奥行きのあるインナーバルコニーは、急な雨でも洗濯物が濡れずに済むので安心です。また、休日はアウトドアリビングとしてバルコニーでくつろぐのもよいですね。
これをベースにお好きな間取りに描き変えてください!(E081)

