間取り・注文住宅プラン集

【間取り・注文住宅プラン】コンパクトな敷地に建つ2LDKの間取り

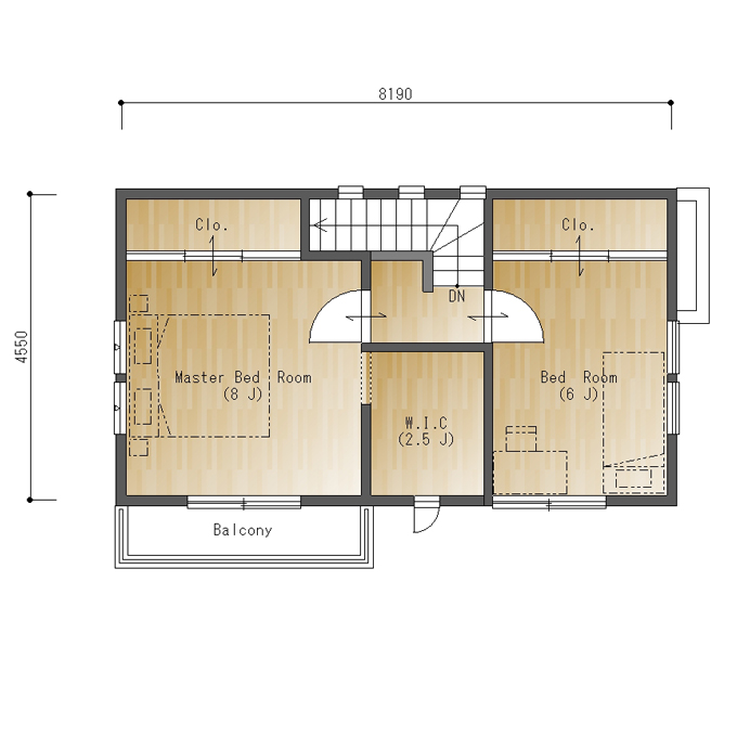
東玄関、東西の間口4.5間(8190㎜)、南北の奥行が2.5間(4550㎜)の参考プランです。

コンパクトな敷地に建つ2LDKの間取り。できるだけ無駄なスペースを無くし、効率的に部屋を配置しました。

LDKは13帖で対面キッチンを採用しましたが、家具の配置を工夫することで大きなテレビを楽しめるソファも置けます。
壁付けのキッチンにすれば、さらに空間としては広く演出できますね。

水回りはキッチン背面に集中配置しており、家事効率のアップを考慮しています。
トイレはリビング階段で隠れるようプライバシーに配慮しました。

二階は主寝室と子供部屋。どちらのお部屋も角部屋で、通風・採光に配慮しました。
6帖の子供部屋には一間半のクロゼットを設置しているので、収納量は十分でしょう。
8帖の主寝室は一間半のクロゼットと2.5帖のウォークインクロゼットを設置。こちらも十分な収納スペースになっています。

これをベースにお好きな間取りに描き変えてください!(E069)