間取り・注文住宅プラン集
【間取り・注文住宅プラン】ゆとりのあるリビングと、カーポートのある3LDKの間取り

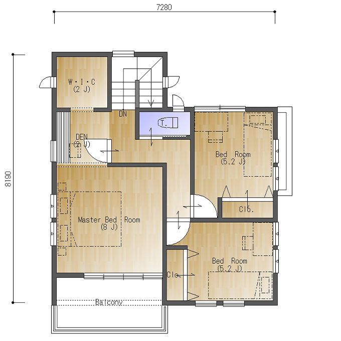
東玄関、東西の間口4.0間(7280㎜)、南北の奥行が4.5間(8190㎜)の参考プランです。
ゆとりのあるリビングと、カーポートのある3LDKの間取りです。
カーポートに敷地がとられる分、水回りを北側に配置することでLDKのスペースを18帖確保しました。広々としたLDKなので、テレビやソファー、ダイニングテーブルセットを置いても空間に余裕があります。
キッチンは対面式なので、家族の様子を見ながら料理や家事をすることができます。
またリビングの南側には大きな開口部があり、外側のデッキへと続いています。屋外で遊ぶ子供達をソファーでくつろぎながら見守れますね。
二階は均等な子供部屋が二つに主寝室。子供部屋にはクロゼットが備えつけてあるので、5.2帖のスペースを有効に使えます。主寝室には、2帖の書斎と、同じく2帖のウォークインクロゼットがあります。南面に奥行きのあるバルコニーがあるので、より明るく開放的な空間になっています。
これをベースにお好きな間取りに描き変えてください!(E055)

