間取り・注文住宅プラン集
【間取り・注文住宅プラン】デッキのスペースを広くとった3LDKの間取り

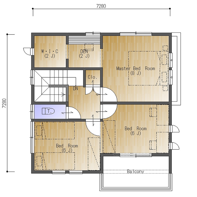
東玄関、東西の間口4.0間(7280mm)、南北の奥行が4.0間(7280mm)の参考プランです。
デッキのスペースを広くとった3LDKの間取りです。
玄関を入ると、視覚的に奥行をもたせるため上がり框を奥に向かって伸ばしてしています。
一階のLDKは19.5帖、ダイニングテーブルやソファーを配置しやすい間取りです。
リビングの南側にあるデッキは十分な広さがあり、リビングの開放感を高めています。天気のいい日にはデッキにテーブルを広げて、ランチを楽しむのもいいかもしれませんね。
二階へつながる階段は、家族のコミュニケーションがとりやすいリビング階段です。
二階は各部屋が角部屋になっており、採光性・通気性に優れています。
8帖の主寝室はキングサイズのベッドを置いても十分な広さです。主寝室からつながる2帖の書斎には、デスクとして使えるカウンターが設置されています。2帖のウォークインクロゼットもついているため、洋服の多い方も安心です。
これをベースにお好きな間取りに描き変えてください!(E050)

