間取り・注文住宅プラン集
【間取り・注文住宅プラン】コンパクトな敷地に建つ3LDKの間取り

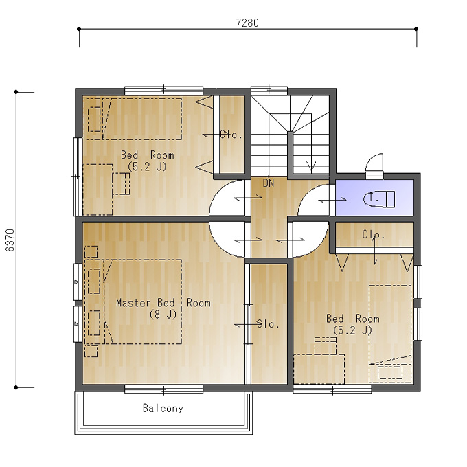
東玄関、東西の間口4.0間(7280㎜)、南北の奥行が3.5間(6370㎜)の参考プランです。
コンパクトな敷地に建つ3LDKの間取りになります。敷地がコンパクトな分、廊下やホールなどの共用部分を極力小さくし、居室スペースが広くなるよう工夫しました。
一階には、18帖のLDKと水回りを配置。浴室、洗面所などの水回りとキッチン、階段が近いため、料理の合間にバルコニーで洗濯物を干したいという時にも移動がスムーズでしょう。ストレスフリーな家事動線がポイントです。
二階は8帖の主寝室と5.2帖の子供部屋が二部屋。すべて角部屋となるよう工夫されており、かつ窓が二面ずつ設けられているので、開放感があり通風・採光も良好です。
また、クロゼットも各部屋に設置。収納の心配がなく、残りの空間が有意義に使えます。子供部屋ならベッドと机を置いたり、主寝室にはキングサイズのベッドを置いたりしても余裕がありますね。
これをベースにお好きな間取りに描き変えてください!(E044)

