間取り・注文住宅プラン集
【間取り・注文住宅プラン】和室と隣り合わせの広いリビングのある4LDKの間取り

東玄関、東西の間口3.5間(6370㎜)、南北の奥行が5.5間(10010㎜)の参考プランです。
和室と隣り合わせの広いリビングのある4LDKの間取りです。
玄関を入ると、視覚的に奥行をもたせるため上がり框を奥に向かって伸ばしてしています。
一階のLDKは20帖あります。キッチンの周りは回遊動線になっているので行き止まりがなく、ストレスなく移動や家事・生活ができそうです。料理も運びやすい動線になっています。LDKの隣には和室があるので、お客様を迎えたり、親戚の宿泊に使ったりしてもいいですね。
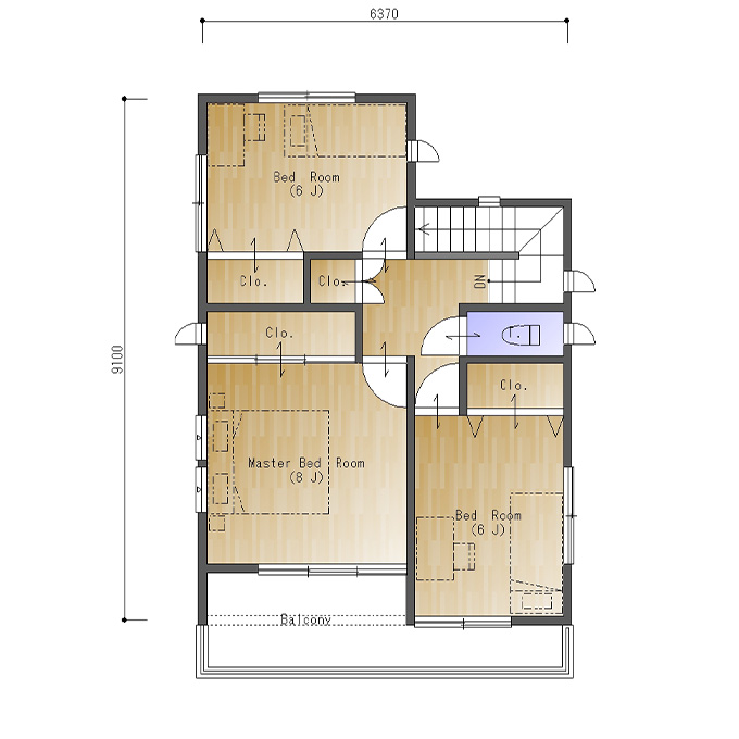
二階の主寝室は8帖あり、キングサイズのベッドを置いても十分な広さ。それとは別に3帖のウォークインクロゼットがついています。3帖あれば、ご夫婦の衣類もたくさん収納できそうですね。主寝室の南側には、南東側の子供部屋とつながる広々としたバルコニーがあり、明るい光が取り込めます。北西の子供部屋は二方向に窓があるので、通気性に優れています。
これをベースにお好きな間取りに描き加えてください!(E036)

