間取り・注文住宅プラン集
【間取り・注文住宅プラン】南北に細長い敷地に建つ3LDKの間取り

東玄関、東西の間口3.0間(5460㎜)、南北の奥行が5.5間(10010㎜)の参考プランです。
南北に細長い敷地に建つ3LDKの間取り。北側部分の建物を凹ませてカーポートスペースをつくりました。
浴室をカーポートスペースの脇に配置してスペースの無駄を省き、その分、LDKはしっかり16.5帖の広さを確保。LDKに面してデッキを設けたことにより、開放感のあるつくりになっています。家族の外出や帰宅がわかるリビング階段なので、あいさつや会話が自然と生まれ、家族のコミュニケーションが深まりますね。
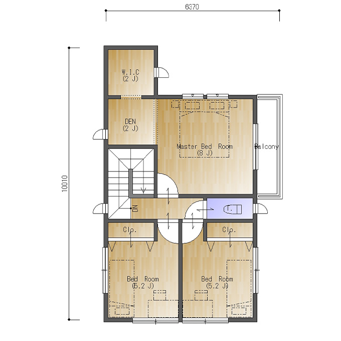
二階の三部屋はすべて部屋の二面に窓を配置しており、通風・採光が良好です。
南側の子供部屋はそれぞれ5.2帖。各部屋にクロゼットを設けているので収納に困らず、室内のスペースを有効に使えます。
北側の主寝室は8帖。2帖のウォークインクロゼットと、同じく2帖の書斎を設けています。東側にバルコニーがあるので、明るく開放感がありますね。
これをベースにお好きな間取りに描き変えてください!(E019)

