間取り・注文住宅プラン集
【間取り・注文住宅のプラン】リビング脇のバルコニーが使いやすい南道路3階建て4LDKプラン

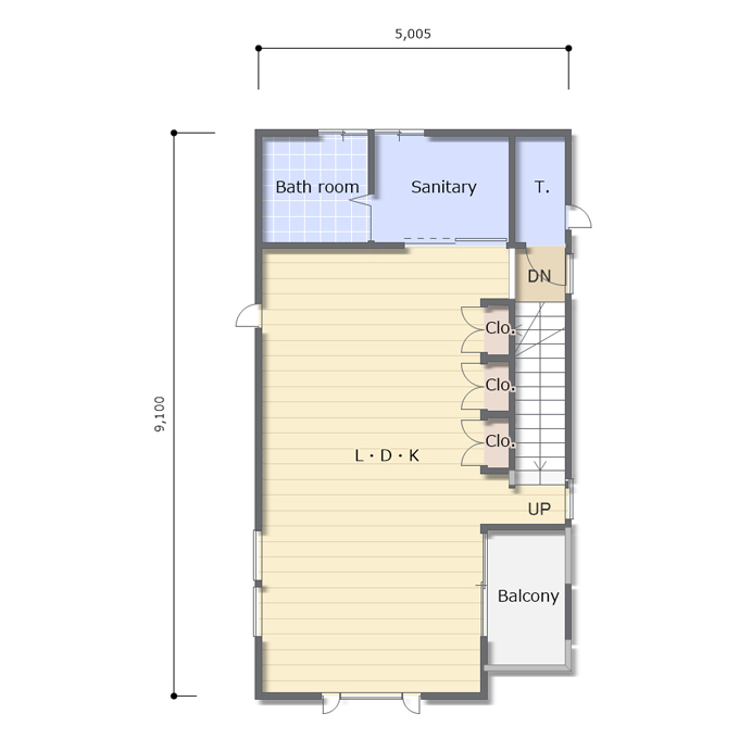
間口が5mほどとれる3階建ての間取りの例の続きです。
さらに奥行が3尺(910㎜)ほど大きく取れる間取りの例ですが、ここまでくると「狭小」という言葉に似つかわしくない充実した建物を作ることができます。
二階LDKは17帖、道路正面ではなく建物脇に奥行のあるバルコニーが取れています。
二階に水回りがあると同じ階のバルコニーで洗濯ものを干したいですが道路正面にはあまり見せたくない洗濯物も。でもこのように建物脇にバルコニーを持ってくるアイデアはそのような不満を解消します。
また、道路斜線が厳しい場合、建物の脇にバルコニーを持ってこれればその分斜線に当たる部分が減ることがおおくなり天空率で有利に働くことが多くなります。
このプランでは北側斜線がない地域を想定して三部屋としました。
いずれの部屋も収納がしっかり確保されている三階建てのプランです。
これをベースにお好きな間取りに描き変えてください!(cS013)


