間取り・注文住宅プラン集
【間取り・注文住宅のプラン】ライトコートとカーポートのある南道路3階建て3LDKのプラン

建物中央部に採光のためのライトコートを設けた3階建ての間取りになります。
一階カーポートの間口は3m強確保しました。その分玄関はコンパクトになってしまいますがクルマの出し入れや乗り降りを考えると(大きなセダンであればなおのこと)これくらいの間口があるといいでしょう。
一階にうまく洗面と浴室を配置して一番奥に6帖の主寝室を、ライトコートから採光を取るとともにカーポート部分に開口を作って道路までの見通しをよくするようにしています。
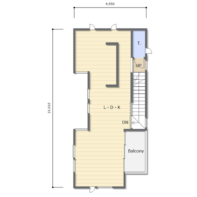
アイランド型キッチンを置いた二階のLDKは全部で19帖。
建物脇に大きなバルコニーを配置しました。正面だと丸見えですがこのように道路から見えにくい場所でプライバシーを確保したバルコニーも良いかと思います。
三階は北側斜線を想定して二部屋となっていますが、斜線のかからない地域でしたら真中の部屋の一部を廊下にして北側にもう一部屋設けることができます。
南側の部屋には二階のバルコニーと同じ場所にこちらも大きなバルコニーを設けています。
これをベースにお好きな間取りに描き変えてください!(cS008)


