間取り・注文住宅プラン集
【間取り・注文住宅のプラン】リビング脇のバルコニーが明るい北道路3階建て4LDKのプラン②

広いカーポートのある3階建て4LDKの間取りです。
カーポートの間口は3m。奥行も5mほどありますので普通車でもすっぽりと入れることができます。
玄関ホールには30㎝ほどの奥行の浅い収納を並べました。ゴルフバッグや靴箱にしまいきれない靴もここに収納できます。一階主寝室は7帖、書斎と3帖のウォークインクロゼット付きです。
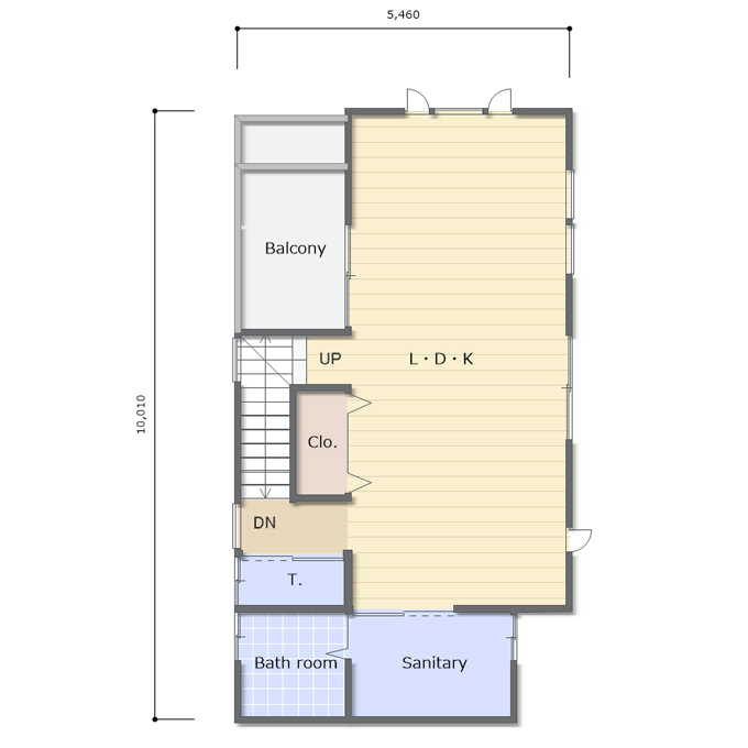
二階にあがったホール付近にトイレや洗面所をまとめました。大家族向けに大きな洗面を用意しました。間口1800㎜ほどの洗面台がおけますので家族並んで洗面ができます。帰宅時に手を洗うのも便利な場所に配置してあります。
LDKは18.5帖。使いやすい対面式のキッチンで、脇には大きな収納もついています。
バルコニーも奥行のある、ちょっとしたテーブルや椅子を出すことができる広さです。
三階はそれぞれ収納の充実した子供部屋が三つあります。それぞれ収納を除いて6帖あります。
これをベースにお好きな間取りに描き変えてください!(cN019)


