間取り・注文住宅プラン集
【間取り・注文住宅のプラン】リビングにリモートコーナーを設えた北道路3階建て4LDKのプラン

広いカーポートとリモートコーナーがついたLDKのある4LDKの3階建て間取りです。
カーポートは間口が2間(3640㎜)あります。これだけあれば乗り降りが楽なだけでなく脇に何台かの自転車も置ける余裕があるカーポートになります。
また一階主寝室は8帖。ウォークインクロゼットもついて充実した主寝室になります。
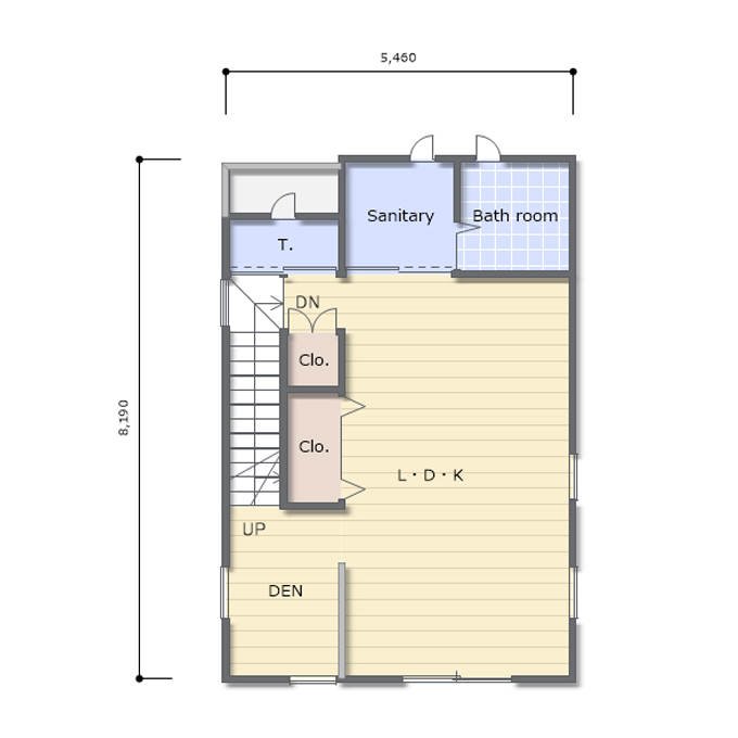
階段をあがった二階のLDKは14.5帖。水回りとキッチンを近接させたレイアウトで周囲に小物がいれられる収納も充実しています。
そしてリビングの一角にリモートコーナーとして書斎を設けました。もちろんリビングのままでも良い場所です。
三階は子供部屋が3室。すべてが角部屋の二面採光になっており、また間口一間の収納がついています。
これをベースにお好きな間取りに描き変えてください!(cN017)


