ホーム
>
業務用厨房設備レイアウトソフト 厨房プランナー
>
サンプル画像
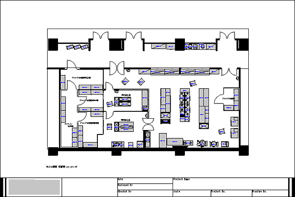
サンプル画像 ホテル厨房 平面図
この画像は、「
厨房プランナー
」で作成しました。