ホーム
>
オフィスレイアウトの3Dオフィスデザイナーシリーズ
>
3DオフィスデザイナーPRO3
>
出力サンプル
> SOHO 平面図
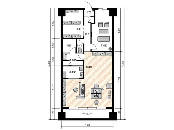
出力サンプル(SOHO 平面図)
このイメージは「
3DオフィスデザイナーPRO3
」で作成しました。
出力サンプルトップ
次のサンプル→
Open source traffic analysis