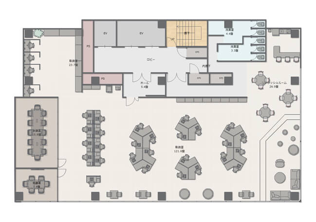
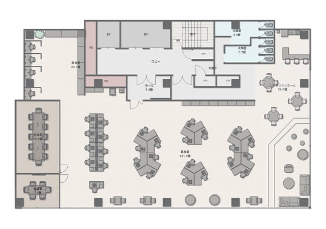
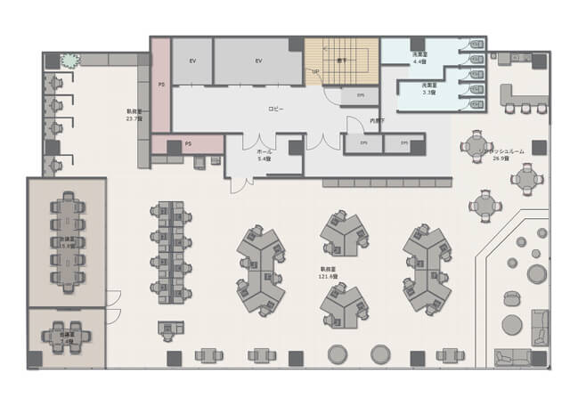
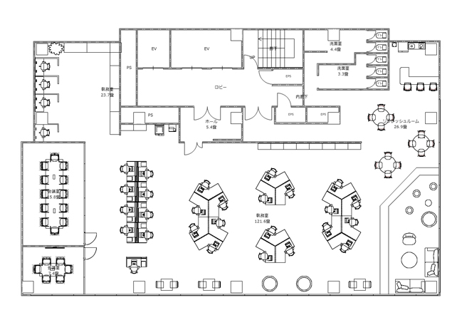
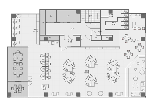
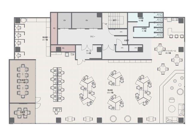
作成した図面は、さまざまなテイストに切り替えられます。
シンプルな「線画」やデザイン性のある「テクスチャ」など、ワンタッチでお好みの図面に。
標準(家具・線)
標準(家具・塗)
低彩(家具・線)
低彩(家具・塗)
モノトーン
テクスチャ
線画
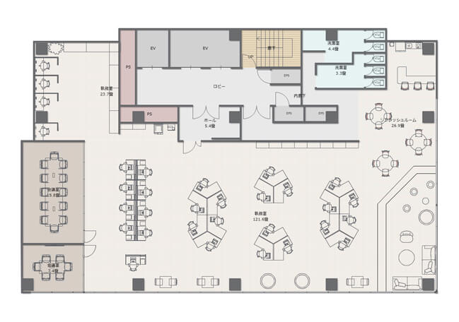
寸法線は自動で設定でき、部屋のサイズを変更すると自動で数値も変更されます。
もちろん手動で個別に寸法線を設定することもできます。
自動で表示させる場合は、「芯々」「内法」「外寸」から選択します。
※寸法線の始端と終端の種類を変更できます。
※自動寸法線の小数点以下の表示も可能です。