
エプソン販売株式会社 大阪支店 篠原 匡 課長、金谷 三佐恵 主務 |
![]()
今回は、ショールームやイベント会場のレイアウト検討に3Dオフィスデザイナーを活用している、エプソン販売株式会社大阪支店の篠原さんと金谷さんにお話を伺いました。

エプソン販売大阪支店に3Dオフィスデザイナーが導入されたのは、昨年の大阪ショールーム移転の時。
東京本社の同僚が、以前からイベント会場のプランニングに3Dオフィスデザイナーを使っていて、便利だからと紹介を受けたので試してみようと思って、と篠原さんは導入の経緯を教えてくれました。
「それまでは画像系ソフトを使っていたのですが、動線や通路の幅の感覚などが掴みにくいこともありました。」とおっしゃるのは金谷さん。
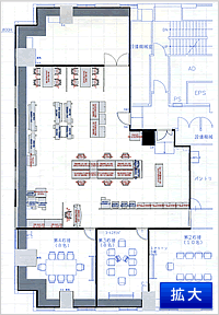
エプソン販売が扱うビジネス向け商品は、小さくて持ち運べるプロジェクタやデスクサイドで活用できるビジネスインクジェットプリンタ、そしてB0サイズまで出せる大判インクジェットプリンタまで、多種多様なサイズの商品群。それらを限られたショールームスペースに効果的かつ精確に配置するのに、3Dオフィスデザイナーは最適でした。
「1m間隔で設定されたグリッドが基準になるので、動線や通路幅を感覚的に把握できるのがいいですね。デスクサイドプリンタはもちろん大判プリンタまで最初からパーツで入ってるので、ただ並べていくだけでレイアウトが緻密に検討できました。」

これは使えると思った金谷さんは、ショールーム移転と同時期に持ち上がったプライベートショーのイベント会場レイアウトにも3Dオフィスデザイナーを使ってみました。
「イベント会場は広いワンフロアではなくて、複数の会議室を使って展示するスタイルだったのですが、来場者の動線を考慮しながら効率よく展示するためのレイアウトを検討するのに非常に重宝しました。」と金谷さんは言われます。
エプソン販売大阪支店のショールームは、定期的に開催されるさまざまな催しに応じて、その都度レイアウトを変更するとのことで、機材の配置はもとより参加者の椅子の数や並べ方などを検討するのにも、3Dオフィスデザイナーが必須のツールとなっているそうです。
![]() |
![]() |
エプソンのショールームの3D画像と写真
「こういった配置検討以外にも、おもしろい使い方として本社への棚卸し報告にもこのソフトを使ってるんですよ」と篠原さん。
どの機材がどれだけどこにおいてあるかを3Dオフィスデザイナーの平面図に記入して、棚卸しの資料として添付しているそうです。
「こうしておけば、備品などが見つからなくなったときにどこにおいてあったがすぐにわかるので、探し回る余計な手間がかからないんです。」
イベント会場の設営シミュレーションだけでなく、総務的な業務にも3Dオフィスデザイナーを応用しているユニークなテクニックを紹介いただきました。