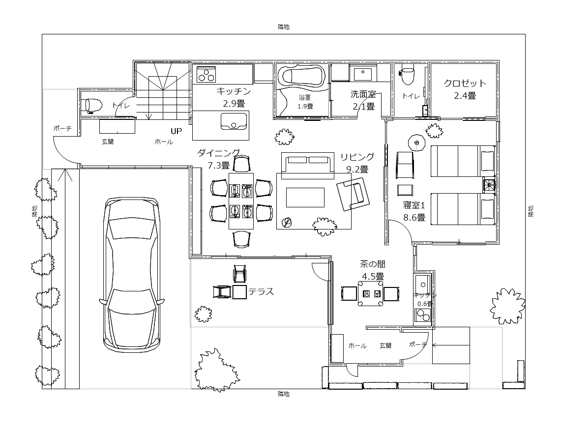
3DマイホームデザイナーPRO10
平面図(線画)
線画の平面図。ワンタッチで切り替えられます。