メガソフト トップ
>
3Dマイホームデザイナーシリーズ
>
3DマイホームデザイナーPRO 導入事例
> 拡大画面
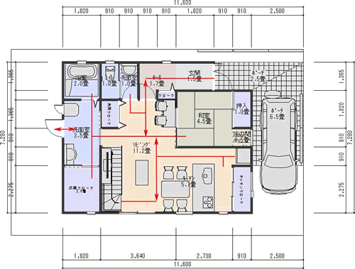
生活動線を赤いラインで示し、広さや収納スペースについて説明