テーマ:3Dパース、店舗デザイン、プレゼン
山憲工務店は埼玉県寄居町というのどかな田舎町に居を構えながら、アグレッシブなチャレンジをし続けているユニークな工務店です。
かつてTVチャンピオン大工王選手権に出場して準優勝を獲得したり、インターネット建築コンペに参加して数十社の中から契約を獲得したり、常に新しい世界を切り開くのは、「地方にあっても斬新な感覚をアピールしたい」という山口社長のポリシーから。
そんな山口社長の、積み重ねた実績がまたまたユニークな案件を引き寄せました。

きっかけは、おいしいコーヒーを求めてノルウェーで武者修行をしていた甥、小島さんからの連絡でした。
「ノルウェーの有名店Fuglenの東京店を出店することになったので、施工を手がけてほしい」
山口さんの様々な挑戦を見聞きしていた小島さんが、おじさんならまかせられる、と持ちかけたのです。
日頃は住宅の設計施工が主体の山憲工務店ですが、チャレンジ精神旺盛な山口さんだけに、二つ返事で請け負いました。その後、様々なメディアで取り上げられることになる人気のカフェ「Fuglen Tokyo」の店舗施工は、こうしてスタートしたのです。
ノルウェーの夜をイメージしたバーカウンター
「Fuglen Tokyo」は、ノルウェーの名店「Fuglen」初の海外進出だけあって、店舗のデザインはたいへんこだわりのあるもの。この設計はノルウェーのデザイナー、ヨナス氏によるものです。これまで様々な建築を手がけてきた山口さんですが、海外の設計者とのコラボは初めての経験でした。
「FUGLEN Tokyo」のコンセプトは「ノルウェーのデザイン」「ノルウェーのコーヒー」「ノルウェーの夜(Bar)」。つまり本物のノルウェーを東京でも体験できるということです。完成した「FUGULEN Tokyo」を見れば、それは見事に実現できていることがわかりますが、ここにたどり着くまでには様々な壁を乗り越える必要がありました。まず、設計者のヨナス氏は基本的にノルウェーにいるという距離の壁。そして、ヨナス氏とのコミュニケーションはノルウェー語か英語という言葉の壁。また、ノルウェーと日本での建材の違いというマテリアルの壁もありました。
(左)ノルウェーデザインの調度 (右)ノルウェー式コーヒー
しかし、3DマイホームデザイナーPROを駆使する山口さんだけあって、距離の壁はインターネット通信「ビデオSkype」で解決しました。そして言葉の壁は二つのサポートで解決できました。一つはノルウェー語と英語、両方ができる外語大学生に同席してもらうこと。そしてもう一つが3DマイホームデザイナーPROで作った3Dパースを見せること。百聞は一見にしかず。3Dパースが言葉の壁を越えたのです。
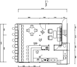
ヨナス氏から届けられた平面図の一例
店舗物件の工期がタイトなのは日本もノルウェーも同じです。物件確認のために来日したヨナス氏に山口さんが会ったのは2012年1月。その翌月には店舗の設計図面もないままに解体作業が始まっていました。
そして翌3月中旬にはオープン日が5月11日と決定。まだ設計が確定しないうちに工期だけが2ヶ月と確定しました。ここから山口さんの奮闘が始まります。
設計のやりとりはヨナス氏から届く平面図を元にして、山口さんが3DマイホームデザイナーPROでパースを起こします。
ヨナス氏の平面図を元に山口さんがパースを作成
様々な視点から描画した画像をヨナス氏に送り、双方で図面とパースを見比べながらビデオSkypeですりあわせを繰り返すというハイテクでインターナショナルな日々。設計と施工のプロ同士とはいえ、3Dパースで確認しあうことで、双方が確実に共通のイメージを持つことができ、何度もの修正を経て最終的な店舗プランを完成することができたのは3月末のことでした。
設計さえ完成すれば現場は山口さんの独壇場。指定の木材探しや建材の選定などで苦労したところもありますが、なんとかオープン日までに完工させることができました。
解体と施工、怒涛の日々
「これまで遠距離の施主と3Dパースでやりとりをした経験はありましたが、海外の、しかも外国人との打ち合わせは今回が初めてでした。でも、たと海外・外国人とであっても3Dパースはとても有効なツールであることが再確認できましたね」
と山口さん。今回の経験でノルウェー流のデザインや素材づかいがとても勉強になったので、今後の設計に大いに役立てたい、とチャレンジ精神をさらに燃え上がらせていました。
イメージ通りに仕上がったFuglen Tokyo
※Fuglen Tokyoは数々のメディアで取り上げられています。