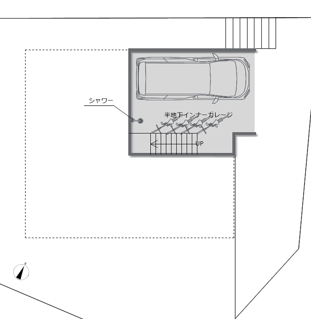
地下間取り
1階間取り
2階間取り
ライフスタイルや延床面積、家族構成などを基に作成した、建築士考案の間取りサンプルです。
あなたに合ったマイホームの間取プラン検討にぜひご活用ください。
間取りサンプルを多数収録した間取り&3D住宅デザインソフト「3Dマイホームデザイナー13」もおすすめです。
間取り図サンプルを活用した家づくり
地下間取り
1階間取り
2階間取り
間取り&3D住宅デザインソフト「3Dマイホームデザイナー14」なら、間取りサンプルを基にマイホームを立体化して理想のお家をシミュレーションできます。

印刷した間取りサンプルをもとに、家族みんなで話し合い。


大まかなプランが決まったら、3Dマイホームデザイナー13で間取りを変更。


作った間取りを立体化。家具や壁紙を変えてインテリアを決めたり、ドアの開き具合や通路の幅などを歩き回ってチェック!
いろいろ試して理想のマイホームに近づけていきましょう。
