間取り図ダウンロード


ライフスタイルや延床面積、家族構成などを基に作成した、建築士考案の間取りサンプルです。
あなたに合ったマイホームの間取プラン検討にぜひご活用ください。
間取りサンプルを多数収録した間取り&3D住宅デザインソフト「3Dマイホームデザイナー13」もおすすめです。

間取り図サンプルを活用した家づくり

< 収納重視の間取り
< 家事動線重視の間取り
< コミュニケーション重視の間取り

1階間取り

1階間取り

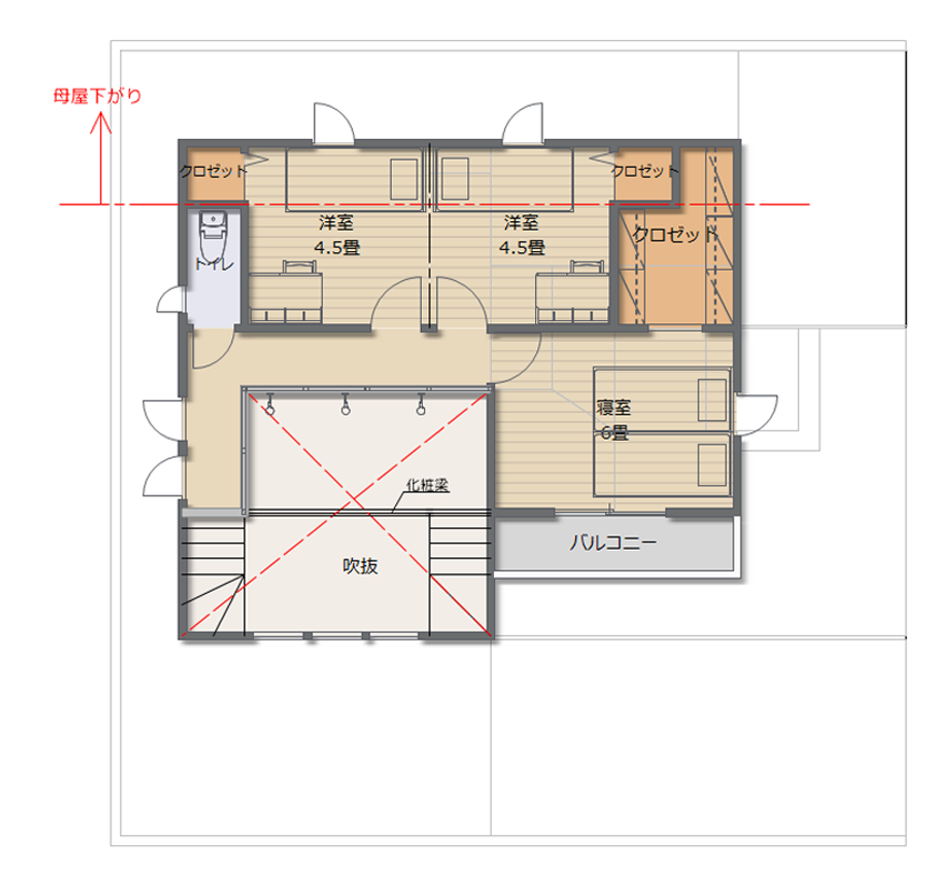
2階間取り

2階間取り

間取り一覧へ


間取りサンプルを活用した家づくり

間取り&3D住宅デザインソフト「3Dマイホームデザイナー14」なら、間取りサンプルを基にマイホームを立体化して理想のお家をシミュレーションできます。

印刷した間取りサンプルをもとに、家族みんなで話し合い。

大まかなプランが決まったら、3Dマイホームデザイナー13で間取りを変更。

作った間取りを立体化。家具や壁紙を変えてインテリアを決めたり、ドアの開き具合や通路の幅などを歩き回ってチェック!
いろいろ試して理想のマイホームに近づけていきましょう。