メガソフト トップ > サポート > 3Dオフィスデザイナーシリーズ > 3Dアーキデザイナー11 Professional OfficePack > 図面枠を挿入する

よくあるご質問

図面枠を挿入する

詳細

11
図面枠を挿入する方法です。

 

【関連】
オリジナルの図面枠を作成する

 

 

 

操作方法

1.間取り図を作成し、ナビ[CAD作図]、[図面枠]を選択して[図面枠の編集を開始]をクリックします。
01

 

 

 

 

2.用紙サイズ、用紙の向き、縮尺を指定します。
02

 

 

 

 

3.図面枠をクリックして挿入します。
03

 

 

 

 

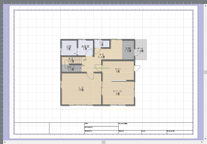
4.ナビ[部屋作成]を選択します。間取り図と図面枠が表示されます。

 

 

5.ナビ[CAD作図]を選択し、[図面枠]の[図面枠を移動]をクリックして位置を調整します。

 

06

 

6.印刷、PDF出力するには、[印刷]ボタンをクリックします。
(PDF出力の場合には、プリンタを「Microsoft Print to PDF」に指定してください)

 

 


※ 図面枠を削除するには、[図面枠]レイヤを削除します。
07

 

 

調査依頼

各QAページをみても解決しない場合は調査依頼ボタンから、ご不明な点をお尋ねください。
※ご依頼いただく前にユーザー登録が必要です。

3Dアーキデザイナーシリーズ/3Dアーキデザイナー11 Professional

3D医療施設デザイナーシリーズ/3D医療施設デザイナー11

3Dオフィスデザイナーシリーズ/3Dアーキデザイナー11 Professional OfficePack、3Dオフィスデザイナー11 Professional EX

物流倉庫3Dシリーズ/物流倉庫3D