メガソフト トップ > サポート > 3Dオフィスデザイナーシリーズ > 3Dアーキデザイナー11 Professional OfficePack > 間取り図の影を非表示にする/壁を黒色にする

よくあるご質問

間取り図の影を非表示にする/壁を黒色にする

詳細

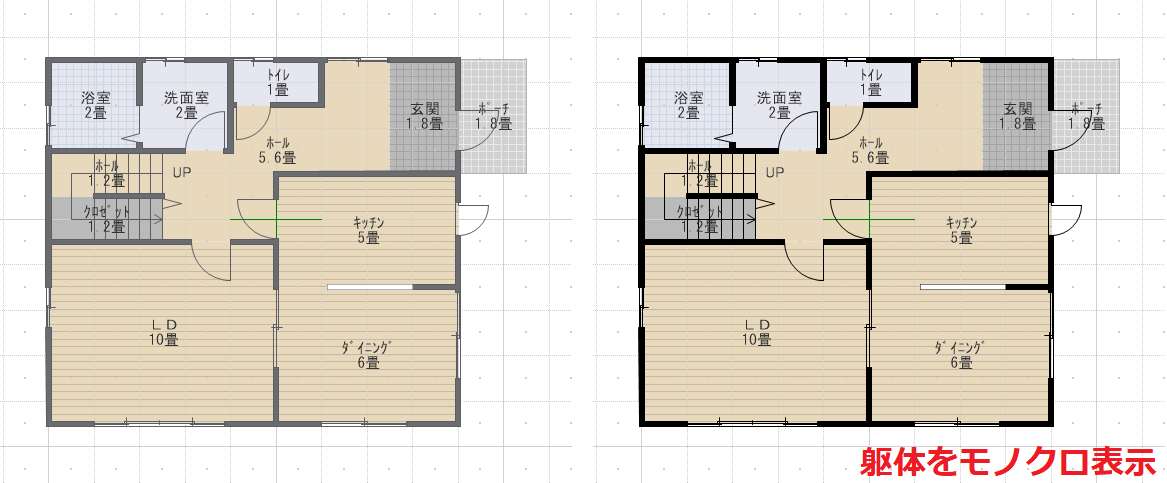
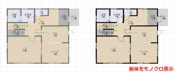
間取り図の影の有無、壁のモノクロ表示の有無を切り替えられます。
0103

 

 

 操作方法-影を非表示にする

・ 間取り画面の[表示]メニューの[カテゴリ別]の[影]をクリックしてオフにします。
・ 以降も新規の間取り画面で常に影を非表示にするには、[設定]メニューの[その他の設定]を選択し、[躯体・パーツの影を起動時から表示]をオフにします。
05


操作方法-壁を黒色にする

・ [設定]メニューの[その他の設定]を選択し、[躯体をモノクロ表示/印刷]をオンにします。
06

調査依頼

各QAページをみても解決しない場合は調査依頼ボタンから、ご不明な点をお尋ねください。
※ご依頼いただく前にユーザー登録が必要です。

3Dアーキデザイナーシリーズ/3Dアーキデザイナー11 Professional

3DマイホームデザイナーPROシリーズ/3DマイホームデザイナーPRO10EX、3DマイホームデザイナーPRO10

3Dインテリアデザイナーシリーズ/3DインテリアデザイナーNeo10

3D医療施設デザイナーシリーズ/3D医療施設デザイナー11

3Dオフィスデザイナーシリーズ/3Dアーキデザイナー11 Professional OfficePack、3Dオフィスデザイナー11 Professional EX、3DオフィスデザイナーPRO10

3D住宅リフォームデザイナーシリーズ/3D住宅リフォームデザイナー10

物流倉庫3Dシリーズ/物流倉庫3D