機器・設備メーカー様の製品も収録可能

豊富なプレゼン機能、各種CADとの互換性もあり作業効率アップ

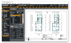
CADとの連携で効率アップ

     

DWG、DXF、JWCの2D/3Dファイルの入出力に対応。読み込んだCADデータのレイヤを非表示にしたり、作図ツールを使用して編集することも可能もです。

CAD連携画面

前へ

TOPへ

次へ